那珂市 | 注文住宅 白×黒×グレーが調和する、洗練されたモダン空間

お施主様が選んだ白・黒・グレーの潔い配色は、シンプルでいて力強さと上質さが漂う空間を造り出しました。
床材は石目柄でホテルのような空間に。階段の仕様やアクセントのエコカラット、照明など細部にまで厳選されたこだわりの一邸です。
広々とした吹き抜けが、開放感あふれる心地よさを演出

LDKは27.5帖。リビングの上部の広々とした吹抜けは自然光がたっぷり差し込み、大きなテラスドアを通してリビングと庭がひとつの空間に。
2階の居室はすべて吹抜けホールに面しており、どこにいても開放感を感じられる設計。
スタイリッシュなブラックのハイドアが空間を引き締め、モノトーンインテリアに上質なアクセントを加えています。
玄関ホールの正面とニッチにはアクセントにエコカラットを採用。
ダウンライトの陰影が質感を際立たせ、存在感のあるデザインにしました。
落ち着きのある上質な雰囲気でゲストをお迎えする、印象的なエントランスです。

家族との会話も自然に生まれる、セミオープンスタイルのキッチン
開放性と独立性のバランスを叶えたセミオープンキッチン。
作業中の水はねや油はねを抑えながらも、リビングにいる家族の様子を見守り、自然に会話ができる設計です。
機能性とデザイン性を兼ね備えた、心地よいコミュニケーション空間になっています。

外観はシンプルにして重厚、モノトーンが際立つモダンデザイン
外観はモノトーンでまとめ、高低差のある四角いフォルムがシャープな印象を与えるデザイン。
玄関まわりにはアクセントとして「ラグナロック」を採用し、岩肌のような力強い凹凸感が住まい全体に個性と重厚感をプラスしています。
シンプルでありながら存在感のある佇まいが魅力です。


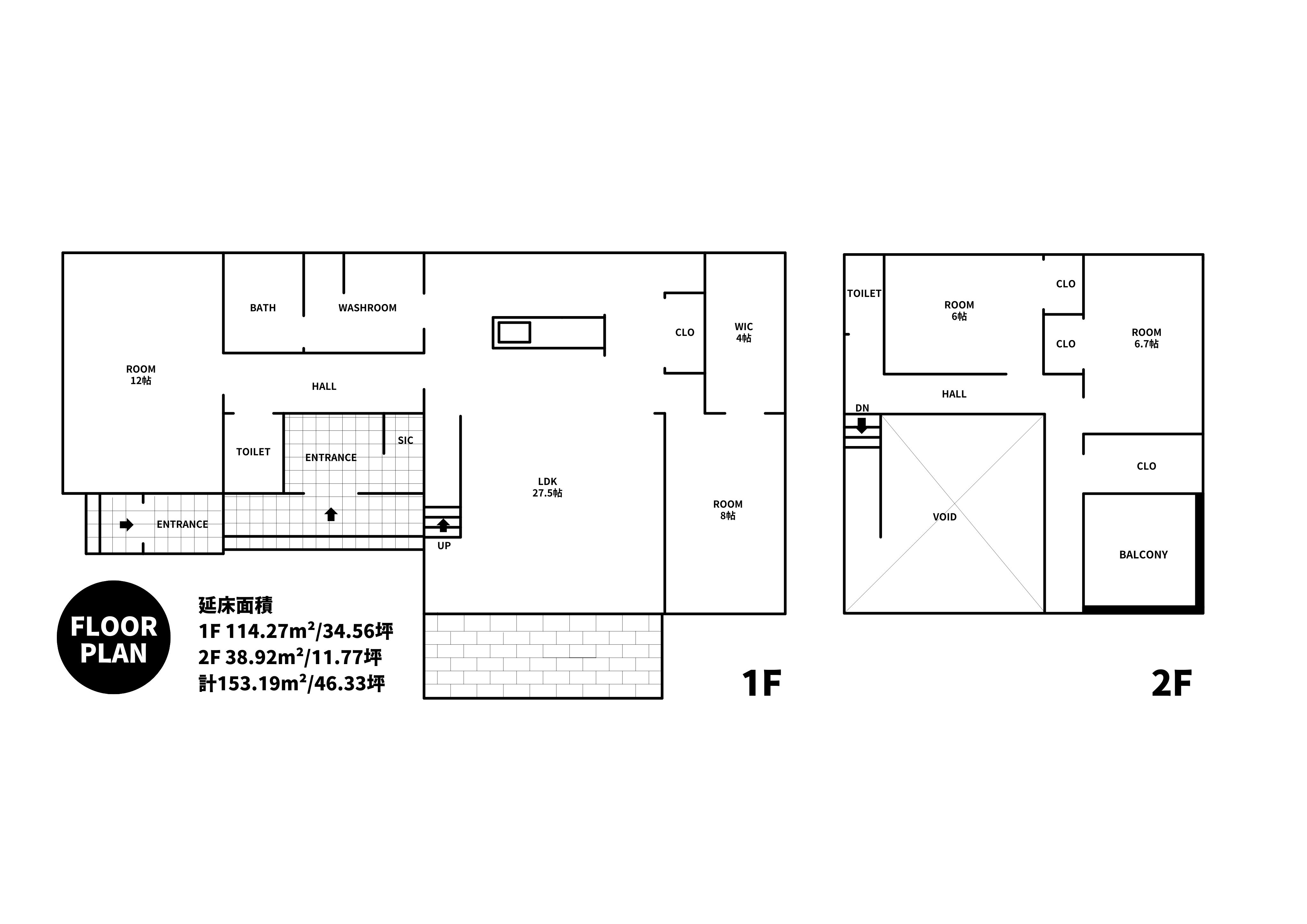
プライベートと共有のバランスがとれたシンプルな間取り
横にのびたシンプルな間取りが特徴的で、平屋のような暮らしやすさを実現。
生活動線をコンパクトにまとめつつ、吹き抜けを中心にした開放感のある空間構成で、毎日の暮らしがスムーズに。

【POINT】
・開放感のある吹き抜けリビング
・2階ホールとつながる設計でプライベートと共有のバランスを考慮
・セミオープンのスタイリッシュなキッチン
・エコカラットで彩る玄関ホールやリビング
・モノトーンでまとめたシャープな外観デザイン
延床面積 / 153.19m²(46.33坪)
1F : 114.27m²(34.56坪) / 2F : 38.92m²(11.77坪)
▶規格住宅 ZERO-CUBEの詳細はこちら
▶アカラのInstagramはこちら
▶モデルハウスの見学予約はこちら





